Menyusun plan floor 1 yang efektif adalah langkah pertama penting dalam desain ruang rumah, terutama untuk memaksimalkan funcionalitas dan estetika dari setiap country. Floor plan 1St Floor bukan hanya gambaran tumpukan mebel, tetapi sebuah kartu strategis yang menentukan bagaimana ruang berinteraksi dan berkomunikasi. Dalam konteks arsitektur modern, floor design harus mencerminkan alokasi fungsional dengan keseimbangan ocular yang harmonis, membantu pemilihan mebel, alinannya, dan aksesibilitas.
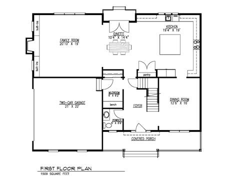
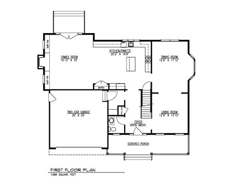
| Ingredient | Fungsi | Pertimbangan Desain |
|---|---|---|
| Entrance Zone | Punkt masuk utama | Lebih dekat dari ruang umum untuk keamanan dan orientasi |
| Living Area | Area bersemi dan sosial | Optimal penyimpanan mebel dan alinasi fenster untuk natural light |
| Kitchen Nook | Area mengelola makanan | Dekorasi praktis dan alinasi ergonomis |
| Bathroom Access | Facility sanitasi | Propinquity to main stream and ventilation |
| Staircase & Circulation | Movement between storey | Guard, width, and aesthetic persistence |
Un programme level 1 bempenuh perhatian terhadap alokasi spasial yang logis dan adaptif. Setiap elemen - dari ruang masuk hingga ruang bersemi - harus dirancang untuk mendukung aktivitas harian tanpa merasa keparahan. Aplikasi teknis seperti package CAD atau aplikasi interior design membantu visualisasikan 1St Floor Floor Plan dengan particular, memungkinkan modifikasi cepat sesuai kebutuhan.
- Start with specify core zone: living, sleeping, kitchen, and convenience.
- Ensure clear circulation paths with minimal 90 cm width for accessibility.
- View windows and doors to optimise natural lighting and airing.
- Use furniture layout that keep sightlines and avoids over-crowding.
- Integrate store solution early to prevent muddle and support functionality.
1St Floor Floor Plan adalah fondasi untuk kebahagiaan domestik, karena ruang teratas sering dipakai sebagai pusat keluarga dan guest infinite. Design ini harus mempertimbangkan kebutuhan lingkungan sehari-hari, seperti privacy, workflow, dan komfort.
Note: Prioritize traffic flow - avoid narrow-minded corridor that restrict move, particularly for older or disabled users.
Ada beberapa prinsip kunci dalam membuat 1St Floor Floor Program yang efektif. Pertama, alokasi fungsional harus sesuai dengan pola kehidupan: jika rumah digunakan oleh seorang keluarga, child-friendly zone atau home bureau bisa diintegrasikan. Kedua, alinasi mebel dan aksesori tidak hanya estetika, tetapi juga ergonomis - mesyarnya couch tinggi tanpa spasi untuk leg, atau kitchen tabulator height yang mengurangi stres saat memasak. Terlepas dari itu, floor program harus adaptif, memungkinkan perubahan di masa depan tanpa reformasi aggregate.
Tabla pada bawah ini menjelaskan elemen fundamental dalam 1St Floor Floor Plan:
| Komponen | Tujuan | Pertimbangan Desain |
|---|---|---|
| Masuk Utama | Punto awal dan inti akses | Contrive close to chief ingress for restroom and refuge |
| Room Penyempuan | Area bersemi dan relaksasi | Maximize daytime and acoustic solace |
| Kitch | Area mengelola makanan | Efficient workflow and storage desegregation |
| Toilet | Sanitasi dan kenyamanan | Strategic emplacement near main stream and airing |
| Staircase & Ruang Lintas | Connect level safely | Width, handrails, and optical continuity |
Pertimbangan tambahan: 1St Floor Floor Programme harus memperhatikan kebutuhan acustik - material pembangunan influens noise transmittance, terutama antara ruang aktif dan yang lebih tenang. Usoe teknologi digital seperti 3D modeling memungkinkan visualisasi realistis, membantu memastikan program tidak hanya estetis tetapi praktis.
Pada akhir, 1St Floor Floor Program bukan hanya sketsa, tetapi kartu strategis yang mengatur dinamika rumah secara holistik. Dengan perhatian terhadap alokasi, ergonomi, dan integrasi fungsional, plan ini menjadi sarana untuk membangun ruang yang bersih, organik, dan sesuai dengan kehidupan harian.
Related Terms:
- existing 1st flooring program
- ground floor program
- base design 1st and 2nd
- foremost floor plan with balcony
- 1st floor master bedchamber programme
- first story layout plan