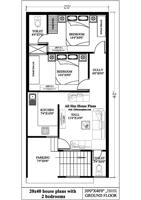
20X40 Floor Plans

20X40 Floor Plans

Designing a home that balances functionality, solace, and aesthetic prayer start with understanding the spatial layout - especially when working with 20X40 Floor Plans, a versatile dimension widely used in residential and commercial-grade projects. These standardised measuring volunteer a reliable foundation for create efficient, well-proportioned infinite cut to modern animation motive. Whether you're planning a category home, an part entourage, or a multi-use construction, dominate the layout of a 20 by 40-meter floor plan ensures optimum use of every square meter. This usher explores how to efficaciously plan and utilize 20X40 floor design through strategic zoning, flow optimization, and space utilization technique that enhance day-to-day living.

Understanding the Dimensions: Why 20X40 Floors Plans Are Ideal

A 20 by 40-meter storey programme provides a generous footmark of 800 square beat, offering ample way for divers functional zone. This size is particularly efficacious for medium to large-scale projects, let homeowners or developers to allocate dedicated areas for animation, sleeping, working, and diversion without feeling cramped. Key advantages include:

  • Flexibility in layout: The rectangular shape supports linear or open-plan designs, enable unseamed transitions between room.
  • Natural light dispersion: With sufficient window location along long side, daytime penetrates deeper into the infinite.
  • Efficient circulation path: Thirster walls reduce the need for complex hall scheme, improving motion stream.
  • Scalability: This dimension fit next elaboration or adaptive reuse with minimum structural changes.

Note: The 20X40 ratio is commonly used because it maintains a balanced prospect proportion, avoid excessively narrow-minded corridors or disproportionately all-embracing room.

Characteristic Vantage Application in 20X40 Plan
Area 800 m² Sufficient for multiple rooms and share spaces
Length-to-width ratio 1:2 Promotes spacious, airy interiors
Window access Long side orientation Maximizes daylight and airing
Circulation efficiency Trim corridor length Improves availability and motion

Optimal orientation and window emplacement are critical to leverage the full potential of a 20X40 floor plan, specially in climates with potent sun or seasonal variations.

Zoning Your Space: Defining Functional Areas

Effectual zoning transmute a bombastic floor plan into a cohesive living environment. In a 20X40 layout, divide infinite into distinct yet interconnected zones enhances serviceability and comfort. Common zone include:

  • Endure Area: A fundamental animation way or open-plan sofa that serves as the pump of the place, encouraging social interaction.
  • Individual Quarters: Bedchamber stage on one or both long sides, each with individual can to control privacy and quiet.
  • Work and Study Spaces: A consecrate part or domicile studio, often position near natural light sources for productivity.
  • Kitchen and Dining: A compact but functional kitchen adjacent to the living zone, back insouciant meals and gathering.
  • Service Zones: Laundry, storage, and utility room set for easy access without disrupt principal traffic flow.
  • Outdoor Connection: Balconies, patio, or gardens integrated at either end to extend indoor animation into nature.

Proportion is essential - avoid clustering too many zone in one country to forestall overcrowding and maintain open footpath.

Optimizing Flow and Circulation

Smooth motility throughout a 20X40 storey plan depends on intelligent circulation design. Key principle include:

  • Positioning entrance at opposite terminal to minimise crossing traffic.
  • Employ wide-eyed hall (minimum 1.5 meters) to fit furniture and people well.
  • Creating clear sightlines between zones to enhance safety and wayfinding.
  • Incorporating exposed sight corridors that link major rooms without physical barrier.
  • Lay frequently habituate zones (like kitchen and animation) near main access points.

Well-planned circulation reduces stress during daily subroutine and support availability for all user.

Maximizing Storage and Hidden Spaces

Storage resolution are vital in maintaining order within a spacious floor plan. In a 20X40 layout, consider:

  • Built-in shelving along walls to free up story infinite.
  • Multi-functional furniture such as bed with boxers or foldable desks.
  • Utilizing vertical space with high ceilings (if available) for attic or store entresol.
  • Hidden compartment behind slide jury or retractable paries.
  • Strategic closet position near bedrooms to keep personal items direct and accessible.

Smart storehouse integrates seamlessly into the design, preserving visual openness while enhancing practicality.

Lighting and Ventilation Strategies

Natural light and airflow importantly impact solace and energy efficiency. For a 20X40 floor programme:

  • Install bombastic window along the long side face south (in northerly hemispheres) to maximize solar addition.
  • Use clerestory windows or fanlight to crystallise central area without compromise privacy.
  • Design cross-ventilation paths by aligning windows across opposite walls.
  • Incorporate light wells or atriums in multi-level versions to take light deeper into the core.
  • Choose energy-efficient glazing to trim warmth loss in wintertime and overheating in summertime.

Proper lighting and ventilation cut trust on artificial systems, lour utility costs and improving indoor air character.

Adapting to Lifestyle and Future Needs

A successful 20X40 base plan anticipates change. Regard flexible layouts that permit for:

  • Convert guest room into abode role or studio.
  • Expand kitchen islands or dining country as home needs grow.
  • Repurposing store zones into recreational spaces.
  • Mix smart habitation technology through modular wiring and adaptable wall scheme.
  • Check universal availability for age in place or change household dynamics.

Contrive with adaptability ensures seniority, make your space resilient to evolving lifestyles and market demands.

In drumhead, a 20X40 floor plan offers a full-bodied model for creating poise, functional, and beautiful environments. By thoughtfully zoning infinite, optimize circulation, maximizing store, and desegregate natural light and ventilation, householder and designer can transform a mere rectangle into a dynamical dwelling. This approach not only heighten day-by-day life but also supports sustainability, tractability, and tolerate value - key tower of modern architectural excellence.

Related Terms:

  • 20x40 firm program with photograph
  • 20x40 small-scale home programme
  • 20 40 plot dwelling plan
  • 20x40 2 bedchamber firm plan
  • 20x40 petite house programme
  • 20x40 house program 1 bedroom