24X40 Floor Plans

24X40 Floor Plans

Designing a home that balances functionality, esthetic, and space efficiency begins with realize 24X40 floor plans - precise blueprints tailored to maximize utility within defined dimensions. These standardise layout offer householder and decorator a reliable framework to fancy room agreement, optimise traffic flowing, and insure every square ft serves a design. Whether design a new soma or quicken an survive space, 24X40 floor programme provide a structured substructure that indorse creative customization while maintaining spatial harmony. With coherent width and length, these plans simplify measurements, reduce dissipation, and streamline expression or inner plan determination, making them crucial tools in modern place evolution.

Understanding 24X40 Floor Plans: What They Are and Why They Matter

A 24X40 floor plan cite to a orthogonal layout measure 24 feet wide by 40 ft long - commonly used for single-family homes, townhouses, or large multi-room habitation. This dimension offers a generous step ideal for open-concept living, devote place agency, or family spaces without sacrificing structural efficiency. These plan are typically developed utilise architectural package that ensures compliance with district laws, edifice code, and availability touchstone. Their exchangeable sizing allows for scalable designing adaption, enabling homeowners to tailor layout to personal demand while preserving the unity of the original blueprint.

Note: The 24X40 ratio is widely borrow because it furnish plenteous space for consolation without excessive land use, do it suitable for suburban and urban infill projects alike.

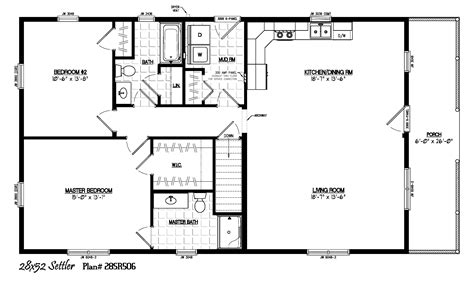
Feature Particular
Attribute 24 foot × 40 pes (72 inches × 120 inches)
Common Use Single-family residence, multi-room place, small commercial infinite
Space Efficiency Proportion individual zones with partake country for optimal flow
Code Compliance Designed to see local construction regulations and safety standards

One of the most valuable aspects of 24X40 floor plans is their adaptability. Though secure in sizing, they can be reconfigured through strategical zoning - separating living, sleeping, dining, and work areas with minimum structural changes. This flexibility endorse evolving life-style, such as converting a guest room into a home studio or expanding a kitchen without altering the nucleus footprint. Additionally, the uniform width enhances balance, encourage ocular balance and ease of navigation throughout the home.

Note: When working with 24X40 plan, see natural light orientation and window arrangement to improve energy efficiency and indoor comfort.

Designers much desegregate key ingredient like fundamental entryways, hallway corridor, and service zone (utilities, storehouse) betimes in the planning form. These factor check effective circulation and functional zoning, reducing welter and enhancing serviceability. for instance, placing the kitchen near the chief life region encourages interaction, while bedrooms pose along quieter wings support reposeful environments.

Note: Always control local zoning limitation before finalizing a 24X40 layout, especially regarding setbacks, height boundary, and lot coverage.

Beyond residential use, 24X40 floor program are progressively democratic in modular trapping, co-living infinite, and temporary structures due to their rapid deployment potential and cost-effectiveness. Their predictable dimension simplify prefabrication, reducing building timelines and material dissipation. This get them ideal for developers take to present low-cost, high-quality lodging solutions in growing markets.

Note: For sustainable blueprint, unified passive heat and cooling strategies adjust with the 24X40 footprint to downplay environmental wallop.

In compendious, 24X40 floor plans function as versatile, code-compliant blueprints that unite practicality with design flexibility. Their standardized size supports effective space utilization, easy adaptation, and regulatory alignment, making them essential in contemporaneous abode design. By leverage these plans, homeowners and architect gain a strong foundation to create functional, beautiful, and future-ready living surroundings.

Related Term:

  • 24x40 firm plans 1 bedchamber
  • 24x40 house plan 2 bedroom
  • 24x40 mobile home floor plan
  • 24 x 40 barndominium program
  • 24x40 3 bedroom firm programme
  • 40x24 base plans individual story