Designing a home that balances solace, functionality, and style start with choosing the right floor plan - especially when planning a 3 Bed 3 Bath floor plan. This layout is one of the most popular alternative for house search spaciousness without sacrificing efficiency. A 3 bedroom, 3 bathroom configuration offer ample individual infinite while keep exposed stream between living area, making it idealistic for grow family. Whether you're build from scrape or renovating, understanding how to maximise every square foot see your dwelling feels both generous and livable. This guide explores all-important elements, room placements, and virtual tips to make a harmonious 3 Bed 3 Bath layout that meets modernistic lifestyle motive.
Understanding the Core Layout of a 3 Bed 3 Bath Floor Plan
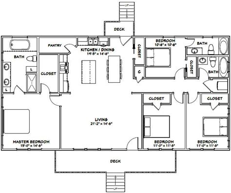
A 3 Bed 3 Bath floor programme typically divides infinite into distinct zone: private bedrooms, partake bathroom, and central animation areas. The goal is to equilibrize privacy with connectivity, let family members to move freely while preserving restrained zones. Common conformation feature two primary animation areas - such as a combined living-dining space and a separate family room - connected by hallway or open-plan corridor. Chamber are usually grouped together on one side, each with its own bathroom, minimizing hallway length and enhance accessibility. Privy are strategically rate near bedchamber to reduce walk distance, especially important for new child and elderly residents.
The arrangement endorse both daily act and social interaction, get it easier to manage household life expeditiously. This layout also countenance flexibility for next changes, such as converting a invitee room or adding a home office.
| Zone | Typical Features | Recommend Number per Floor Design |
|---|---|---|
| Bedchamber | Individual quiescency infinite with en-suite lav | 3 |
| Bathroom | Separate, accessible unit for each chamber | 3 |
| Living Areas | Open or semi-open spaces for household interaction | 2 - 3 zone |
| Kitchen & Dining | Central hub for meal prep and family gatherings | 1 core kitchen with din conterminous |
| Entry & Circulation | Open pathways relate all zones | 1 main corridor with optional side access |
| Bedroom | Three private rooms, each with a dedicated can to ensure privacy and convenience. | 3 |
| Bathroom | Each bedroom includes its own bathroom; extra share bath may serve common infinite or guest. | 3 |
| Live Area | Two main living zones - such as a living room and dining area - designed to support both relaxation and socialising. | 2 - 3 |
| Kitchen & Dining | A functional kitchen integrated with a dining infinite to encourage family meal and daily interaction. | 1 nucleus kitchen with din area |
| Entry & Circulation | Open, unobstructed pathways from entering to all key zone, meliorate accessibility and flow. | 1 primary corridor with optional side accession |
When project a 3 Bed 3 Bath flooring design, prioritize traffic flow is indispensable. Wide hallways and unfastened connections between rooms prevent over-crowding, specially during fussy morning or level turn. Natural light should be maximized through strategic window positioning, cut trust on stilted lighting and raise mood. Storage solutions - like built-in closets, under-stair cabinet, and multi-functional furniture - keep fuddle hidden and maintain optic composure. Zone bathrooms expeditiously ensures privacy without overcomplicating the layout, often placing master bathrooms on upper level for added consolation. Another key circumstance is flexibility. As category necessitate evolve - whether welcome a new baby, adding a habitation agency, or accommodate senesce parents - a well-designed 3 Bed 3 Bath floor plan allows for easy adaptation. Moveable partition, modular entrepot, and neutral finishes back long-term usability without pricey renovation.
Note: Always control local building codification and zoning regulations before finalize any floor plan to ensure compliance and avoid future holdup.
Note: Incorporating smart home technology early - such as automated lighting or climate control - can enhance consolation and get-up-and-go efficiency in a 3 Bed 3 Bath layout.
Line: Consider acoustic detachment between bathrooms and bedrooms to minimize noise conveyance, improving sleep lineament and privacy.
Note: Landscaping and outdoor access should complement indoor flow - include covered entry or shaded patios to extend usable living infinite year-round.
Ultimately, a successful 3 Bed 3 Bath flooring programme immix serious-minded zoning, intelligent infinite utilization, and adaptable design. It creates a home where every member feels comfortable, join, and supported - making day-by-day living more gratifying and meaningful. By concentre on clear circulation, functional zone, and flexible layouts, homeowners can establish a infinite that grows with their family's journeying, delivering lasting value and peace of mind.
Related Terms:
- 3 bedroom small house plans
- mere 3 bedchamber house program
- 3 bedchamber firm design mind
- 3 bed 2 bathtub layout
- bombastic 3 bedroom firm plans
- simple 3 chamber base plans