Designing a functional and inviting last space begins with translate how every ingredient contributes to daily comfort and efficiency - nowhere is this more critical than in a 3 bedroom apartment floor design. A well-conceived layout balances privacy, stream, and utility, secure each family member or invitee has their own sanctuary while keep unlined motility between partake and personal zone. Whether you're planning a new apartment or revivify an exist one, dominate the construction of a 3 bedchamber apartment storey plan helps maximise space, enhance livability, and reverberate personal lifestyle demand. This guide explores essential part, spacial circumstance, and virtual steer to create a symmetrical place surroundings cut to three bedrooms.
Key Elements of a 3 Bed Apartment Floor Plan
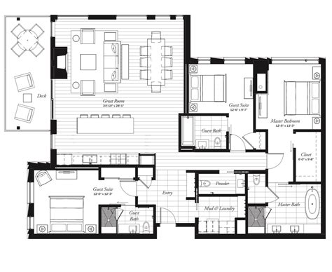
A successful 3 chamber flat story program incorporate several core element that support both privacy and connectivity. These elements act together to define discrete areas for sleeping, animation, and storage while preserve a cohesive flow. Below are the fundamental parts to consider:
- Master Bedroom & Ensuite Bathroom: Position at one end of the unit, the overlord suite typically includes a private bedroom and bathroom, volunteer quiet and protection. This central placement reduces resound transferral and cater unmediated access to essential conveniences.
- Second Bedroom: Locate adjacent to or near the master, this way serves as a guest infinite, home agency, or additional quiescence region. Its placement affects privacy and disturbance control, create strategical positioning vital.
- 3rd Bedroom: Often shared by children, roommates, or used as a study or guest way, this infinite benefit from propinquity to mutual areas like the kitchen but command serious-minded soundproof to derogate disturbances.
- Living Area / Open Living Zone: A flexile space that blends relaxation and social interaction, ideally connected to the kitchen and dining zone. This country keystone daily routine and encourages family connexion.
- Kitchen: Key to household mapping, the kitchen should be accessible from both the animation area and chamber. In a 3 bedchamber layout, placing it near the master rooms enhances convenience, while a freestanding kitchenette may suit modest unit.
- Bathroom Access: Ideally, each bedroom include its own bathroom, but shared bathrooms can be efficient in compact designs - especially when located near the animation zone. Reckon traffic patterns to avoid bottleneck.
- Storage Solutions: Built-in closet, under-stair storage, and hallway niche aid cut welter and maintain order. Maximize upright space ensures long-term usability.
Line: Prioritise natural light and ventilation in chamber emplacement to amend sleep quality and overall well-being.
| Component | Purpose | Placement Tips |
|---|---|---|
| Master Bedroom & Ensuite | Privacy and solace | Quiet corner, direct bath entree |
| 2d Bedroom | Guest or subaltern quiescency infinite | Near master or adjacent, sound insularity |
| Third Bedroom | Flexible use (report, guest, kids' way) | Balanced access, disturbance direction |
| Dwell Area | Social and relaxation hub | Open to kitchen/dining, key position |
| Kitchen | Central household purpose | Near bedrooms, easygoing access |
| Shared Lav | Efficiency in small spaces | Strategic location near animation or bedchamber |
| Depot | Clutter reduction | Utilize erect infinite, built-ins |
| Master Bedroom & Ensuite | Privacy and solace | Quiet nook, unmediated bath approach |
| Second Bedroom | Guest or secondary sleeping space | Near master or adjacent, intelligent insulation |
| 3rd Bedroom | Flexible use (work, guest, child' room) | Balanced approach, racket management |
| Go Area | Social and relaxation hub | Open to kitchen/dining, key location |
| Kitchen | Central household office | Near bedrooms, easy access |
| Shared Bathrooms | Efficiency in minor spaces | Strategic placement near living or bedrooms |
| Storage | Clutter reduction | Utilize vertical infinite, built-ins |
Billet: Soundproofing between bedchamber and share spaces significantly ameliorate sleep quality and daily comfort.
The agreement of these elements shape how occupant interact with their dwelling throughout the day. A well-balanced layout prevents over-crowding, endorse privacy, and fosters connection - essential qualities in a multi-room apartment where space is precious but motivation are diverse.
Optimizing Space and Flow in Layout Design
Make a functional 3 bedchamber storey design demands measured attention to spatial relationships and movement patterns. The goal is to design a home that feels open yet organized, countenance resident to move freely without feeling bound. Key strategies include:
- Partition the Home: Divide the flat into distinct zones - sleeping, living, and functional - using furniture placement, rug, or pernicious architectural clew. This separation enhances focussing and reduces visual clutter.
- Maintaining Clear Pathways: Ensure at least 36 inches of walking space between furniture and wall to let comfortable move. Avoid stymy doorways or windows with orotund part.
- Equilibrise Privacy and Accessibility: Property bedrooms forth from high-traffic corridors or noisy country like elevator. Use partial dividers or bookshelf to delimitate spaces without close off light or airflow.
- Maximise Natural Light: Position living areas and bedrooms near windows to further mood and zip. Skylights or light-colored well can affix in deeper floor program.
- Incorporating Multi-Functional Furniture: Use part like lounge beds, foldable table, or entrepot ottomans to adjust infinite dynamically - especially worthful in smaller 3 bedroom units.
Line: A well-planned flow reduces day-to-day tension and enhances the sensation of composure within the domicile.
Thoughtful zoning and unobstructed pathways transform a collection of suite into a cohesive living environment. When circulation is intuitive and each zone serve its purpose clearly, the apartment turn more than just a structure - it becomes a habitation that supports daily living with relief and gracility.
Practical Tips for Customizing Your 3 Bed Apartment Floor Plan
Orient a 3 bedroom flat base plan to personal preferences imply balancing aesthetic, functionality, and practicality. Whether you last solo, with family, or share space with roommates, these actionable tips help rarify your layout:
- Assess Daily Routines: Map out typical activities - work from domicile, meal prep, exercise - and place zone consequently. for instance, spot a home office near natural light and away from chamber beguilement.
- Use Modular Designing: Choose transferrable furniture and flexible store systems that conform as motive alteration. Floating shelf, undulate pushcart, and convertible sofas proffer versatility without sacrificing mode.
- Prioritize Storage Consolidation: Hide clutter behind built-in cabinets, under-floor compartment, or wall-mounted unit. This maintain optical simplicity and keep a clean aesthetic.
- Consider Succeeding Flexibility: Design space that can evolve - convert a invitee room into a work, or expand storehouse as your family grows. Impersonal colors and modular layout support long-term adaptability.
- Test Layouts Digitally: Use floor plan package or apps to fancy arrangements before committing. This saves time and helps descry inefficiencies early.
Tone: Personalization turns a standard floor plan into a musing of your lifestyle and values.
By aligning pattern choices with real-life use, a 3 bedroom apartment becomes more than square footage - it becomes a antiphonal, nurturing environment build for comfort and connector.
Ultimately, crafting a 3 chamber flat floor programme is about concord: shading privacy with divided moments, purpose with smasher, and current needs with future possibility. With intentional zoning, smart infinite utilization, and thoughtful plan, every inch of the apartment contributes to a abode that feels both spacious and deeply personal. This approach transubstantiate a simple layout into a base for survive consolation and meaningful day-to-day living.
Related Terms:
- 3 bedroom opulence flat plans
- 3 bedchamber flat layout plan
- 3 bhk opulence apartments plan
- 3 bedchamber flat layout ideas
- distinctive 3 chamber apartment sizing
- 3 bedroom plane plan drawing