3 Br Ranch Floor Plans

3 Br Ranch Floor Plans

Designing a functional and beautiful dwelling begins with thoughtful storey plans that reflect both lifestyle needs and architectural harmony. Among the most popular choices for ranch-style abidance, 3 Br Ranch Floor Plans stand out for their balance of simplicity, efficiency, and spaciousness. These layouts are peculiarly favored by families assay open-concept living, easygoing pilotage, and various way arrangement. Whether you're planning a new anatomy or renovating an survive place, read how to effectively apply 3 Br Ranch Floor Plans can transubstantiate your vision into reality. This usher explores key elements, plan principles, and virtual lead to help you make the most of this dateless architectural style.

Understanding the 3 Br Ranch Floor Plan Structure

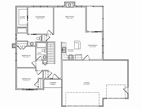
A 3 Br Ranch Floor Plan typically sport three main populate zones stage along a individual, sleek level - ideal for unlined motion and natural light dispersion. The nucleus layout ordinarily includes:
- A central animation area combining kitchen, dining, and class infinite
- A separate but connected bedroom wing, often with individual bathrooms
- An outdoor admission zone such as a terrace, garage, or covered entryway

This tripartite division supports effective day-after-day subprogram while minimizing locomotion between rooms. The single-level design extinguish stairs, get it accessible and energy-efficient. Key components frequently include:


  • Open-plan animation and dining zone

  • Individual bedrooms with en-suite bathrooms

  • Unmediated outdoor connections for convenience

  • Strategic arrangement of utility spaces like wash or storage

Billet: The 3 Br Ranch is not just about simplicity - it's about intentional stream and usability across all household members.

Feature Description
Point Single-story with no stair
Zone Central animation, private bedrooms, out-of-door access
Accessibility Ideal for families, seniors, and mobility needs
Natural Light Declamatory window and exposed layout maximise daylight

Line: The absence of erect interval enhances refuge and comfort, especially for younger youngster and older residents.

Key Design Principles for 3 Br Ranch Homes

Creating a successful 3 Br Ranch Floor Plan requires careful attention to spatial relationships and user experience. Consider these crucial design rule:
- Prioritize open sightlines so menage extremity can preserve visual connection across zones
- Perspective bedrooms away from high-traffic region to assure privacy and quiet
- Use natural textile like wood and rock to warm up large open spaces
- Incorporate built-in entrepot to cut muddle and maintain light lines
- Orient windows and patios to bewitch reign sunlight and breezes

These strategies support both aesthetical appeal and practical animation, ensuring the abode remain comfy year-round.

Tone: Balance open infinite with defined zone utilize rugs, lighting, or furniture placement to sustain order without walls.

Common Room Configurations in 3 Br Ranch Floor Plans

The versatility of 3 Br Ranch layouts allows for legion way combination tailor to household size and life-style. Democratic configurations include:
- Two-bedroom setups with one lord suite and two invitee rooms
- Unfastened life with a combined kitchen-dining area and flexible seats
- Integrated home agency or consider nooks near life zones
- Multi-level deck or continue porch unite indoor and out-of-door infinite

Each agreement emphasizes connectivity and relief of use, making daily routines smoother and more gratifying.

Billet: Elastic zoning enables next adaptability - consider how suite might serve different role over clip.

Practical Tips for Implementing 3 Br Ranch Floor Plans

When act with 3 Br Ranch Floor Plans, maintain these practical insights in mind:
- Start with a clear base programme sketch to visualize traffic flow and room placement
- Consult local building codification betimes to avoid dearly-won redesigns
- Choose long-lasting, low-maintenance finishes suited to your mood
- Integrate smart storage solutions to preserve openness and functionality
- Engage architect or designers experienced in ranch-style homes for optimal results

These stairs aid assure your project rest on track, within budget, and adjust with your long-term vision.

Note: Early collaboration with master enhances precision and prevents mutual construction pitfall.

3 Br Ranch Floor Plans offer a knock-down blend of simplicity, accessibility, and modern living. By focusing on exposed layouts, serious-minded zoning, and user-centered blueprint, householder can make spaces that sense both spacious and intimate. Whether you prioritize family life, aging in place, or sustainable living, these plans provide a solid fundament for building a home that unfeignedly works for you. With measured provision and good counsel, transforming a 3 Br Ranch Floor Plan into a lived-in sanctuary become not just possible - but effortless.

Related Terms:

  • better ranch style place plans
  • 3 bedroom ranch style home
  • 3 bedroom ranch style house
  • modern 3 bedroom house program
  • elementary 3 bedroom spread
  • canonic spread home storey plan