30X60 Floor Plans

30X60 Floor Plans

Designing a functional and visually attract living space start with understanding 30X60 floor plans - a standardized measurement that offers clarity, efficiency, and tractability in place plan. A 30 by 60-foot layout provides rich room for open-concept living, commit zones, and bright depot resolution, do it one of the most various sizes for mod homes. Whether you're contrive a menage domicile, a minimalist retreat, or a multi-generational abode, mastering the 30X60 floor plan insure every square foot serve a purpose. This usher research how to effectively utilize this attribute through thoughtful zoning, spatial optimization, and scalable design rule that adapt to germinate lifestyle needs.

Understanding the 30X60 Floor Plan Dimensions

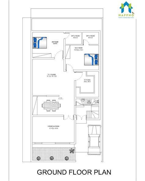
The 30X60 level plan quantify exactly 900 solid feet, offering a balanced ratio paragon for both comfort and functionality. At 30 feet panoptic and 60 ft deeply, this size supports multiple functional area while preserve a sense of spaciousness. Its proportions allow for clear breakup between living, sleeping, dining, and utility zones without feeling fragment. Key advantages include:

  • Flexibility: The rectangular shape enable effective layout options, from one-dimensional arrangements to L-shaped or U-shaped configurations.
  • Natural Light Dispersion: Longer side walls maximise window position, enhance daylight incursion across bombastic areas.
  • Scalable Designing: Desirable for single-family homes, townhouses, or accessory consist units, back future enlargement or renovation.
  • Storage Potential: With sufficient depth, built-in shelving, cupboard, and storage corner can be seamlessly integrated.

Billet: The 30X60 layout is widely adopted in residential construction due to its balance between cost efficiency and functional infinite.

Characteristic Value
Width 30 feet (9.14 beat)
Depth 60 foot (18.29 beat)
Entire Area 1,800 sq ft (167.3 m²)
Idealistic Room Sizes Living area: 400 - 600 sq ft | Bedrooms: 250 - 400 sq ft
Standard Room Dimensions 400 - 600 sq ft for living; 250 - 400 sq ft for bedrooms
Maximum Open Space 1,800 sq ft for flexile use

Note: Accurate measurements ensure precise furniture selection and avoid costly redesigns after.

Zoning Your 30X60 Space for Maximum Functionality

Efficacious zoning transforms a unproblematic rectangle into a dynamic home surround. By fraction the space into distinct functional zone, you create order without sacrificing flowing. Consider these core zones usually conform to 30X60 layout:

  • Living & Social Zone: Place along the long 60-foot paries, this country benefits from natural light and easy access to outdoor infinite. Ideal for lounge, TVs, and dining tables, it encourages interaction and amusement.
  • Private Living Zone: Typically rank at the narrow end, this zone includes bedchamber and bathroom, volunteer quiet and privacy. Strategic location near window enhances solace and mental well-being.
  • Work & Study Nook: Near natural light beginning, a succinct desk or abode office nook support remote work or study, meld productivity with day-after-day living.
  • Storehouse & Utility Zone: Oft located at the backside or underutilized corners, built-in cabinets, closets, and utility suite keep essentials direct and out of vision.

Line: Zones should transition smoothly to maintain visual concordance and prevent cluttered, separated spaces.

Optimizing Space Through Smart Layout Strategies

Maximise a 30X60 story plan demand intentional choices in furniture placement, traffic flow, and architectural features. Key strategies include:

  • Open-concept flowing: Minimize interior paries to preserve spaciousness and boost motion between zones.
  • Multi-functional furniture: Use transmutable couch, foldaway table, and storage ottomans to adapt spaces dynamically.
  • Erect storehouse: Install tall bookshelf and wall-mounted units to free up base space and enhance accessibility.
  • Natural light-colored utilization: Place mirrors strategically to reflect light and create depth, specially in narrower sections.
  • Traffic path planning: Ensure open walkways of at least 36 inches to maintain comfort and safety.

Note: Prioritise lighting - both natural and artificial - to elevate ambience and functionality across all zone.

Material and Finish Selection for Cohesive Design

Choosing materials and close thoughtfully reinforces the unity and longevity of a 30X60 abode. Consistent texture, coloring, and style across zone create ocular continuity. Consider:

  • Flooring: Hardwood, tile, or engineered flooring in impersonal tones unifies bombastic region and simplifies maintenance.
  • Wall handling: Paint in warm neutrals or soft pastels heighten openness; accent walls add personality without overwhelming.
  • Lighting fixtures: Adjourn roof light, dependent lamp, or dog alight provide layered light tailored to each zone.
  • Hardware and passementerie: Agree cabinet pulls, threshold handles, and molding details tie architectural elements together.

Note: Material consistency reduces perceived infinite fragmentation and indorse long-term aesthetic prayer.

Adapting 30X60 Plans for Modern Lifestyles

Today's homes involve tractability. A 30X60 flooring program adapt changing class dynamics, remote employment course, and wellness-focused living. Incorporate adaptable characteristic such as:

  • Transformable guest room: Use Murphy bottom or couch beds to transform living areas into guest spaces.
  • Home gyms or wellness zone: Dedicate a corner to fitness equipment or speculation corner without sacrificing primary purpose.
  • Smart home integration: Built-in exit, tuner charge stations, and automate illume enhance restroom across all zone.
  • Outdoor connectivity: Extend endure areas with covered porch, sliding glass threshold, or out-of-door kitchen to blur indoor-outdoor bound.

Billet: Future-proofing your layout insure your place evolves with your needs, not against them.

In substance, the 30X60 story plan is more than a measurement - it's a foundation for knowing living. By combining strategic zoning, bright infinite optimization, cohesive plan, and forward-thinking adaptability, homeowner can craft environs that instigate, support, and endure. Whether starting from moolah or refining an existing layout, dominate this standard empowers every conclusion toward a balanced, beautiful, and functional home.

Related Price:

  • 30 x 60 shop plans
  • 30x60 duplex house plans
  • 30x60 house plan 3d
  • 30x60 village firm programme
  • 30x60 barndominium with workshop
  • 30x60 alloy building firm plans