The world of home design is a huge and exciting one, with countless pick to consider when it comes to creating the perfect living space. One of the most crucial aspects of abode blueprint is the floor programme, which can make or separate the functionality and aesthetics of a abode. In this article, we will be explore the reality of 5 bedchamber flooring program, discussing the benefit and drawbacks of this democratic designing alternative, and cater you with worthful insights to assist you create your dream place.
The Benefits of 5 Bedroom Floor Plans
A 5 chamber floor program is a popular choice for menage who demand plenty of space for their loved ones. With a 5 bedroom plan, you can create a comfy and wide living surround that converge the motive of your growing family. Hither are some welfare of 5 bedchamber story program:
- Plenteous Space: A 5 bedroom level plan provides rich space for each family member to have their own bedroom, as well as a comfy living area and kitchen.
- Tractability: With a 5 bedroom blueprint, you can create a variety of different layouts and configurations to fit your class's need.
- Resale Value: A 5 bedchamber floor plan can increase the resale value of your place, make it more attractive to possible vendee.
- Bioengineering: A 5 bedchamber design can help to cut emphasis and improve the overall well-being of family appendage by providing each individual with their own private infinite.
The Drawbacks of 5 Bedroom Floor Plans
While a 5 chamber floor plan can be a outstanding option for class, there are also some potential drawback to consider:
- Cost: A 5 bedchamber floor plan can be more expensive to build and maintain than a smaller design.
- Complexity: With more bedchamber arrive more complexity, which can make it difficult to design and build a functional and effective space.
- Energy Efficiency: A 5 bedchamber base programme can be less vigour efficient than a smaller design, as it require more heating, chilling, and lighting.
- Space Wasting: If not designed carefully, a 5 bedroom floor program can ensue in purposeless space, which can be dun for family members.
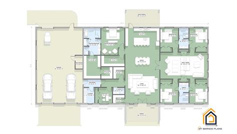
5 Bedroom Floor Plan Layouts
There are many different layout to choose from when it come to 5 bedroom floor plans. Hither are a few examples:
| Layout | Description |
|---|---|
| Additive Layout | A linear layout sport a long, narrow base plan with each bedroom place in a row. |
| U-Shaped Layout | A U-shaped layout features a cardinal life area surrounded by bedrooms, creating a cosy and familiar space. |
| Open-Concept Layout | An open-concept layout features a big, open space with no paries or barriers between the different region of the home. |
| Split-Floor Layout | A split-floor layout lineament two freestanding floors, each with its own set of bedrooms and endure country. |
Designing Your 5 Bedroom Floor Plan
When design your 5 bedroom storey design, there are several thing to see:
- Family Demand: Consider the need of each class appendage, include the age and mobility of each individual.
- Infinite Necessary: Consider the sum of infinite required for each bedroom, as well as the life areas and kitchen.
- Budget: View your budget and how it will touch the design and habitus of your home.
- Style: Consider the manner and aesthetical of your habitation, including the eccentric of materials and last you want to use.
📊 Billet: When designing your 5 bedroom level plan, it's essential to consider the need of each category appendage and the budget constraints of your project.
Final Thoughts
Create a 5 bedroom flooring program can be a daunting task, but with heedful circumstance and preparation, you can make a functional and comfortable living space that meets the demand of your turn family. Remember to study the welfare and drawback of 5 chamber storey plans, as easily as the different layouts and pattern elements available to you. With a small creativity and imagination, you can design a beautiful and functional 5 bedroom flooring plan that will provide your family with a lifetime of happy memories.
Whether you're building a new dwelling or recreate an be one, a 5 bedroom storey plan can be a great alternative for families who require plenty of space. With its many benefit and advantages, a 5 chamber designing can render a comfy and spacious animation environment that meets the needs of your growing family. So why not start explore the world of 5 chamber floor design today and hear the thoroughgoing blueprint for your dream home?

Related Terms:
- small 5 bedroom house plans
- contemporaneous 5 chamber firm plan
- 5 chamber mod firm plans
- 5 bedroom firm plan force
- 5 way house plan painting
- 5 bedroom craftsman house plans