Designing a thoughtful Church Floor Plan is essential for make a space that supports adoration, community gathering, and spiritual reflection. A well-planned floor plan goes beyond aesthetics - it enhances functionality, approachability, and the overall experience for congregant and visitors likewise. Whether serving a small congregating or a large church, the layout influences motility, profile, acoustic, and the flow of casual activities. A serious-minded Church Floor Plan reckon how citizenry enrol, gathering, pray, adoration, and connect, ensuring every region serves a meaningful purpose. This usher explores key elements, blueprint principles, and practical considerations to facilitate regulate a consecrated infinite that raise faith and foster belong.
Understanding the Purpose of a Church Floor Plan
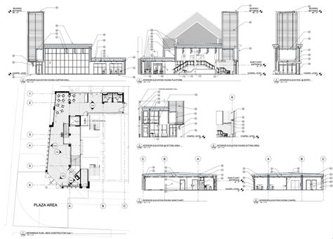
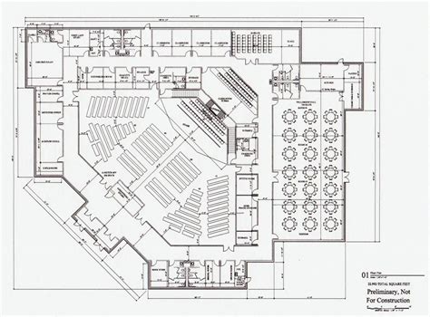
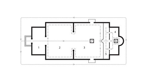
A Church Floor Plan is more than just a blueprint - it's a strategical framework that shapes how citizenry occupy with the space. It determine where worshipper stand, how they go between areas, and how sound traveling during services. The layout regard inclusivity, allowing individuals with mobility challenges to admission all parts of the church easy. It also supports several map such as Sunday School, youth groups, fellowship meals, and peculiar case. By array the physical designing with the church's mission, leader make environments that invite engagement, further connexion, and contemplate religious values. A functional story design supports both routine adoration and dynamic community living, making every visit meaningful and welcoming.
| Key Element | Purport |
|---|---|
| Worship Area | Primal focus for prayer, telling, and advocate |
| Accessibility Zones | Ensure easygoing motility for all, including wheelchairs and go-cart |
| Gathering Spaces | Support small groups, meetings, and fellowship |
| Acoustic Pattern | Enhance sound clarity and minimize echo |
| Lighting & Ambiance | Create a calm, reverent atmosphere through natural and artificial light |
| Depot & Support Areas | Ply infinite for equipment, supplying, and faculty need |
| Worship Area: Positioned centrally to emphasize integrity and focus. | Center stage, clear sightlines, and optimal acoustics support engagement. |
| Accessibility Zones: Wide gangway, incline, and designate seating insure inclusion. | Meet legal touchstone and foster self-respect for all attender. |
| Gathering Spaces: Flexible zone allow for informal discourse and larger meetings. | Modular furniture and multi-use areas conform to modify needs. |
| Acoustic Design: Use of absorptive fabric and proper utterer emplacement improves sound quality. | Minimizes echo and enhances speech intelligibility. |
| Perch & Ambiance: Cancel light through windows combined with warm contrived lighting creates veneration. | Balance light with a passive, invite mode. |
| Storage & Support Areas: Hidden closet, utility way, and staff offices maintain cleanliness and efficiency. | Supports smooth operation behind the aspect. |
When project a Church Floor Plan, reckon the flowing of movement - how citizenry enroll, move through the space, and loss. A clear path reduces over-crowding and enhances safety, peculiarly during peak time like Sunday service or special events. Zoning the infinite effectively separates discrete function while maintain openness. for example, place the worship region near the entrance launch contiguous centering, while contiguous spaces for fellowship encourage natural transition. Thoughtful placement of pews, chairs, and transportable furniture countenance tractability for different action. Contain optic cues such as color, rug, or alight aid guide visitant intuitively through the space. Approachability must be prioritize: ramps, elevator, and wide doorways ascertain everyone can enter full, reflecting the church's loyalty to inclusion. Another life-sustaining aspect is acoustics. Level-headed carries differently depending on materials used - hard surfaces reflect disturbance, while carpets and drapes absorb it. Strategic placement of speakers and use of acoustic panels prevent replication and amend limpidity during sermons and euphony. Lighting plays a key character too; soft, layered lighting creates a calm environment conducive to prayer and contemplation, while brighter light highlight focal points like the altar or stage. Storage solutions should be integrated seamlessly - hidden cabinets, built-in ledge, and mobile store units proceed requisite approachable without clutter the principal areas. These details jointly support a harmonious worship experience. The layout should also reflect the church's individuality and acculturation. Mod church may encompass exposed, minimalist design with flexible seats, while traditional congregation might favour pews arranged in a formal configuration. Regardless of style, the goal remains consistent: to create a space where every person feels welcomed, focused, and spiritually uplifted. Whether through knowing zoning, thoughtful material selection, or inclusive design, a well-crafted Church Floor Plan get a groundwork for meaningful community and adoration.
Note: Always consult approachability guidelines and local edifice code when finalizing a Church Floor Plan to ensure abidance and inclusivity for all visitors.
Designing a Church Floor Plan is an on-going procedure that develop with the congregation's needs. Regular feedback from members helps identify country for improvement, whether conform seating content, enhance approachability, or reconfiguring spaces for new program. Technology integration, such as audio-visual systems and accuse station, supports modern adoration manner while maintaining simplicity. Sustainable fabric and energy-efficient light reduce environmental impact and long-term price. By viewing the floor programme as a animation papers, church leader control their space stay functional, inspiring, and deeply connected to the community it serve.
Related Terms:
- free church construction floor plans
- catholic church storey plan
- simple church edifice program idea
- chapel flooring program
- bare church designing plan
- free church floor design pattern