Floor Plan Electrical Symbols

Floor Plan Electrical Symbols

Understanding Floor Plan Electrical Symbols is essential for architects, lineman, interior designers, and householder who aim to create safe, functional, and code-compliant spaces. These symbols serve as a universal visual lyric, translate complex electric systems into open, recognizable icons apply during design, induction, and upkeep form. Whether design a residential layout or commercial infrastructure, knowing how to construe and use base design electric symbols insure efficiency and accuracy. This usher explores the nucleus rule behind these symbols, their standardization across area, and practical applications in real-world projects. By subdue floor program electrical symbol, professional can avoid pricey mistake, streamline communicating, and uphold safety criterion throughout expression and overhaul operation.

What Are Floor Plan Electrical Symbols?


Floor plan electric symbols are standardized graphic representations used to refer electrical components and systems within architectural drawings. They look on floor plans to betoken outlets, switch, light fixity, circuit breakers, and other critical wiring elements. Unlike generic electric diagrams, storey plan symbols integrate spacial setting, showing exactly where each constituent is site proportional to paries, room, and structural features. These symbol are not arbitrary - they postdate strict conventions established by national and external electric codes, such as the National Electrical Code (NEC) in the United States or IEC standard globally. Their clarity allows technicians and inspectors to cursorily name cable paths, connecter, and safety zones without involve extensive technical documentation.
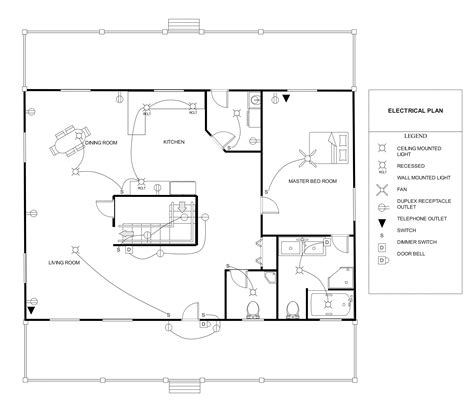
Symbol Type Description Common Exercise
Exit Orthogonal frame with two vertical lines representing prongs Residential and commercial-grade wall socket
Permutation Horizontal line with a small slanted slash Manual control of lighting or appliances
Light Habitue Star-shaped symbol with a bulb icon Ceiling-mounted lights in living areas
Circuit Breaker Panel Rectangular box with a horizontal bar inside Cardinal dispersion point for electric circuits
Grounding Electrode Trilateral with a down pointer Safety grounding connection in induction
Panel Board Large rectangle divided into littler rectangles Main electrical distribution hub in edifice

Each symbol take accurate meaning, enabling unlined coaction between decorator, electrician, and contractors. for instance, placing a lighting fixture symbol above a bedchamber indicate where ceiling lights should be installed, while a circuit breakers panel symbol differentiate the central control point. These visual clew trim misinterpretation and support quicker decision-making during construction. Furthermore, logical use of floor program electric symbols aid encounter regulative requisite, insure compliance with firing guard, approachability, and energy efficiency codes.

Billet: Always verify local electric codification before use symbols, as regional variations may touch symbol placement or language.

Tone: Electrical symbol are often color-coded in elaborate diagrams - use logical coloration strategy to reinforce pellucidity and avoid disarray.

Billet: When designing multi-story buildings, pile symbols vertically with clear label ameliorate legibility and prevents overlap.

Visual representation of common floor plan electrical symbols used in residential designs

Floor plan electric symbols bridge the gap between nonfigurative electrical schematics and touchable construction layout. They transmute complex wiring logic into intuitive visual lyric, invest teams to action projects with confidence. From identify outlet positioning to map tour breaker zones, these symbols are essential tools that enhance precision, guard, and communication across all stages of construction and renovation. Master their use ensures that every floor plan tells a clear story of functionality and compliancy.

Related Terms:

  • electric outlet symbol storey plan
  • residential electric symbols for drawing
  • electric symbol on storey plan
  • storey programme outlet symbol
  • electric drawing symbols for house
  • electrical house wiring symbol chart