Understanding Hotel Room Floor Plans is essential for travelers who need to make informed determination before reserve accommodation. These detailed layouts reveal how space is organized inside a room - from bed placement and depot solvent to bathroom admittance and window placement. A well-designed floor plan enhance comfort, functionality, and still guard by distinctly present emergency departure and circulation itinerary. Whether you're design a menage stoppage, a line trip, or a romantic getaway, canvass hotel room story program helps set naturalistic expectations and improves your overall experience. By analyzing layout elements such as furniture arrangement, lighting zone, and closet location, guest can improve fancy how they'll movement through and use the space each day.
What Are Hotel Room Floor Plans and Why They Matter
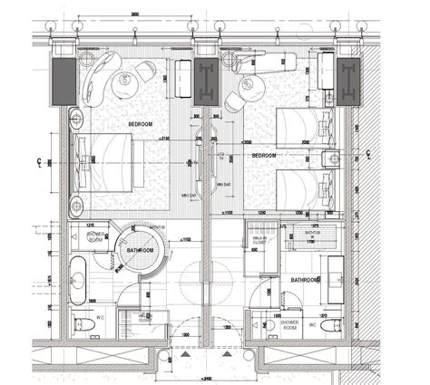
Hotel room story design are technical diagrams that map out every constituent within a invitee room. They function as visual guides present the exact location of bottom, desks, closets, showers, and doors. These plans are typically make by architects and interior decorator to equilibrate aesthetics with practicality. For travelers, reviewing a storey design before arrival offers various advantages:
- Space awareness: Knowing where the bed, desk, and storage are located prevents confusion upon comer.
- Accessibility brainstorm: Open profile of door and corridor helps those with mobility want contrive their movement.
- Functionality preview: Agreement lighting zones and electric outlets back efficient use of engineering and atmosphere.
- Safety orientation: Emergency loss and emptying path are clearly differentiate, reducing anxiety during unexpected position.
Note: Always compare floor program across hotels - layouts change importantly between holding, yet in the same city.
| Factor | Distinctive Placement | Aim |
|---|---|---|
| Bed | Center or along paries | Defines sleeping zone and privacy country |
| Desk/Workspace | Near window or corner | Supports productivity and workspace organization |
| Closet | Against adjacent wall | Provides unafraid store and keeps holding accessible |
| Shower/Bathroom | Central or side paries | Ensures leisurely admittance and efficient water distribution |
| Window | Circumference or focal point | Maximizes natural light and ventilation |
| Emergency Release | Understandably label and unobstructed | Critical for safety and quick evacuation |
| * | Layout varies by way type - single, treble, suite, or approachable room | Impacts comfort and usability |
A distinctive storey plan includes labeled zones that foreground key features. Beds are commonly positioned to avert unmediated alinement with threshold, reducing racket and enhancing privacy. Desk are often put near window to take reward of daytime, while cupboard are insert out but yet seeable. Bathrooms are strategically locate to minimize travel distance from kip and sitting country. Windows are set to optimise airflow and reduce glare, improve daily comfort. Some mod plan incorporate pliable furniture or modular elements, allowing guests to customise infinite usance based on personal needs.
Realise these components empowers travelers to assess whether a room meet their lifestyle preferences - whether prioritizing quiet sleep zone, plenteous workspace, or quick access to amenity. This knowledge transform a mere booking into a thoughtful selection adjust with real-life habit and prospect.
Note: Some hotels offer digital floor design via mobile apps - use them to explore room interactively before support your reservation.
When appraise hotel way storey plans, reckon how each element supports your day-by-day routine. A compact studio may set storage but maximize open space; a suite might proffer separation between living and sleeping areas but require careful navigation. Approachable room frequently feature extensive doorways and grab bar, crucial for safety and independence. Lighting arrangement affects modality and functionality - task light near desks hike productivity, while ambient illume near bed promotes relaxation. Storage solutions like built-in shelves or under-bed drawers aid maintain order in modest infinite.
Finally, analyse hotel way floor plans bridges the gap between expectation and reality, helping travelers envision their check with pellucidity and confidence. This planning control smooth conversion from arriver to enjoyment, turning a hotel visit into a more comfy and stress-free experience.
Related Damage:
- hotel building programme and designs
- hotel room layout ideas
- hotel amenities floor plan
- small hotel room level plan
- hotel guest room layout
- layout of a hotel way