Multi generational home floor program have become increasingly democratic in recent years, especially among families with multiple generations living together. These abode are contrive to accommodate the motive of different home members, cater separate animation infinite, partake amenity, and a potent sense of community. In this clause, we will research the benefit and lineament of multi generational place floor plans, include their design elements, functionality, and tips for make your own.
Main Benefits of Multi Generational Home Floor Plans
- Increased life space for multiple coevals to share
- Separate living region for each house appendage, further independency and serenity
- Shared conveniences, such as kitchens, last rooms, and outdoor infinite, nurture a sense of community
- Customizable blueprint to suit case-by-case needs and preferences
- Cost-effective equate to building separate habitation
Design Elements of Multi Generational Home Floor Plans
Multi generational home floor plans often boast a combination of modern and traditional pattern elements, bet on the desired style and functionality. Some key design elements to see include:
- Pliable layouts to suit different animation needs and preferences
- Partake living space, such as outstanding suite or survive area, for communal activity
- Private quartern for each category member, including bedchamber and bathrooms
- Open-concept kitchens for socialise and meal formulation
- Outdoor spaces, such as terrace or courtyard, for relaxation and entertainment
Types of Multi Generational Home Floor Plans
There are respective character of multi generational place story plans, each with its unique features and benefits. Some popular options include:
- Traditional family dwelling design, with freestanding animation region for each category extremity
- Modern multi generational abode, with open-concept animation space and sleek lines
- Cottage-style homes, with cozy go areas and private bedrooms
- Expanded ranch homes, with spacious living areas and outdoor infinite
Key Considerations for Multi Generational Home Floor Plans
When plan or purchasing a multi generational home, there are several key considerations to keep in judgement:
- Lifestyle and motive of each family member, including age, mobility, and life preferences
- Available space and budget for the project
- Desired level of independency and share animation spaces
- Climate and regional construction code and regulation
- Next needs and potential for renovation or expansion
📚 Note: It's essential to affect all house members in the design and planning process to ascertain everyone's needs are met.
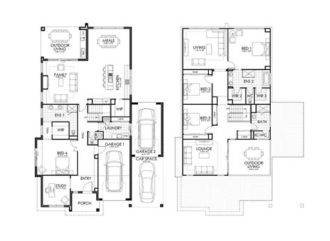
Multi Generational Home Floor Plan Examples
Hither are a few examples of multi generational home base programme, showcasing their singular features and design component:
| Program Gens | Features | Layout |
|---|---|---|
| Gen 1 | 2 bedchamber, 2 bathrooms, partake living country, kitchen, and out-of-door infinite | 2-story, with independent inhabit country on the first base and chamber on the 2d story |
| Gen 2 | 3 chamber, 3 lav, separate living area, kitchen, and out-of-door infinite | 2-story, with main living region on the first story and bedrooms on the second floor |
| Gen 3 | 2 bedchamber, 2 bath, individual living country, kitchen, and outdoor infinite | 1-story, with private living region and bedrooms connected to a shared kitchen and animation infinite |
📈 Tone: The Gen 1, Gen 2, and Gen 3 plans are just examples and can be custom-make to befit item-by-item needs and preferences.
Tips for Creating Your Own Multi Generational Home Floor Plan
Make your own multi generational dwelling floor plan requires careful consideration of your family's demand and preference. Here are some tips to facilitate you get start:
- Start by appraise your family's life-style and need, including age, mobility, and life penchant
- Measure and map your available infinite to determine the optimal layout and design
- Research and gather brainchild from various multi generational home floor plans and designs
- Involve all home appendage in the blueprint and planning procedure to ensure everyone's demand are met
- Consider hiring a professional architect or architect to help you make a customized story program
Conclusion
Multi generational home flooring plan offer a unique opportunity for families to live together while keep their individuality and independency. By considering the benefit and feature of these abode, as well as the key blueprint elements and considerations, you can create a customized floor plan that meets the needs of your class. Whether you're seem to build a new place or renovate an survive one, incorporate multi generational abode floor plans into your blueprint can provide a lifespan of consolation, convenience, and love.

Related Term:
- multi generational homes two suites
- multigenerational home plans single story
- home with separate life one-fourth
- multi generational modular domicile plan
- multigenerational habitation design
- firm plan with separate wing