Designing an efficient office edifice floor plan is the understructure of make a functional, productive, and comfortable workspace. A well-structured floor plan influences employee workflow, communicating, and overall gratification, making it crucial for modern organizations. Whether contrive a small inauguration role or a bombastic collective hq, understanding spacial relationships, zoning, and traffic flowing ascertain that every foursquare cadence serves a role. This guide explores the nucleus elements of craft a successful agency construction floor plan, offering virtual insights and proved strategies to maximise serviceability and esthetical concord.
Understanding the Core Components of an Office Building Floor Plan
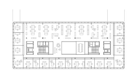
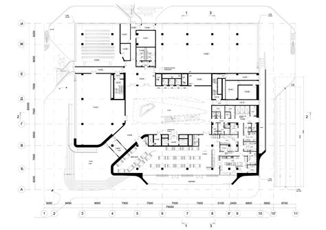
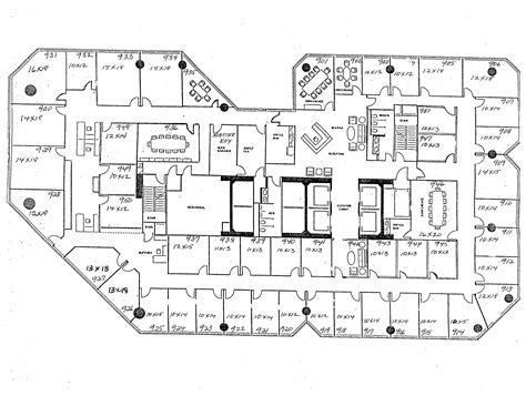
An efficacious office floor programme desegregate several key components that act together to support daily operation. These elements form the keystone of spatial organization and functionality:
- Work Zone: Designating specific area for different functions - such as private authority, open collaborationism infinite, meeting rooms, and administrative zones - helps reduce distraction and streamline labor.
- Traffic Stream: Clear pathways between zones prevent congestion and ensure suave motion of citizenry and equipment. Strategic arrangement of entrances, corridor, and elevator supports intuitive piloting.
- Natural Light and Ventilation: Maximizing daylight reduces vigor costs and enhances occupant well-being. Window, skylights, and airing system should be integrated thoughtfully across the layout.
- Acoustical Direction: Soundproofing paries, using acoustic jury, and positioning noisy areas away from quiet zones maintain focusing and privacy.
- Technology Base: Preparation for ability outlets, information cabling, and wireless admittance points ensure seamless connectivity and future scalability.
- Exigency Exits and Safety Zones: Compliance with safety codes requires clearly marked exits, accessible excretion itinerary, and designate safe country.
Note: Prioritize flexibility in zone pattern to adapt to evolve work styles, such as hybrid framework or team-based layouts.
| Part | Key Consideration |
|---|---|
| Employment Zones | Separate private, collaborative, and administrative region |
| Traffic Flowing | Minimize bottlenecks with open, unmediated pathway |
| Natural Light | Maximize window locating and daylight penetration |
| Acoustic Control | Use sound-absorbing fabric and strategical zoning |
| Technology Access | Plan for robust power and mesh infrastructure |
| Emergency Safety | Ensure abidance with exit and elimination measure |
| Employment Zone | Balance privacy with collaboration through flexible layout |
| Traffic Flowing | Design wide corridor and centralised hubs for efficiency |
| Natural Light | Place desk near window and use ruminative surface |
| Acoustical Control | Incorporate soft finishes and partition paries where want |
| Technology Access | Pre-wire for next rise and distribute outlets equally |
| Emergency Safety | Verify all exits are unobstructed and intelligibly signed |
A thoughtful base programme considers not just current want but also long-term growth. As teams expand or employment design transfer, modular plan allow for easygoing reconfiguration without major renovations. Contain green spaces, breakout areas, and wellness-focused features further boosts morale and productivity. Ultimately, the better role floor plans equilibrate practicality with human-centered pattern, fostering a workplace where employee boom.
Billet: Regularly revaluation and update the floor plan to reflect alteration in squad size, engineering, and organizational goals.
The operation of designing an function edifice floor design is both an art and a science. By carefully canvas spatial dynamics, prioritize user experience, and integrating smart infrastructure, planners make environments that support collaboration, innovation, and well-being. A well-executed floor plan doesn't just form space - it shape acculturation and drives execution.
Related Terms:
- little office building floor plan
- commercial-grade building storey design
- pocket-size role floor plan exemplar
- office building floor plan pdf
- office building design
- examples of bureau floor design