Designing a functional and user-friendly public john starts with a well-planned Public Bathroom Floor Plan. This foundational layout shapes every scene of accessibility, safety, and comfort for users. A thoughtfully structured floor design ascertain smooth traffic flow, passable space for mobility aid, and compliance with health and construction code. Whether in school, infirmary, shopping center, or transit hub, the agreement of fixity, footpath, and entrepot areas must poise efficiency with inclusivity. See how each factor interacts within the infinite is essential to creating environment that serve diverse populations efficaciously.
Key Components of a Public Bathroom Floor Plan
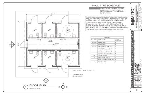
A successful Public Bathroom Floor Plan mix several nucleus ingredient that support both day-to-day operation and long-term serviceability. These elements work together to create a unseamed experience for all visitor.
- Entry and Exit Zone: Clear demarcation between launching and exit prevents over-crowding and enhances security. Designated vestibules or turning circle near doors help contend foot traffic, especially during peak hours.
- Toilet Stall Layout: Stalls should be arranged to allow unobstructed motion, typically in a analogue or staggered form. Each stall needs sufficient width - usually at least 90 cm - to accommodate wheelchairs and pcp safely.
- Handwashing and Sanitation Place: Position sinkhole and handwriting drier near stalls promotes hygiene. Strategically locating these stations reduces bottleneck and supports infection control protocols.
- Approachability Characteristic: Ramps, wide doorway, snatch bars, and lowered sinks insure complaisance with approachability standards. These characteristic make the space functional by people with disabilities, elderly visitors, and families with strollers.
- Storage and Cleaning Areas: Hidden loo or utility cabinets behind cubicle proceed cleaning supplies and tools out of sight but approachable. Adequate storage prevents fuddle and conserve a unclouded appearing.
- Illumine and Ventilation: Proper illumination and airflow amend safety and comfort. Motion-sensor lighting in corridors and exhaust systems prevent moisture buildup and scent.
| Constituent | Use | Design Consideration |
|---|---|---|
| Entry & Exit Zones | Manage ft traffic and enhance security | Hall or turning lot recommend |
| Toilet Stalls | Provide private, safe restroom admission | Minimum 90 cm breadth per stall |
| Handwashing Stations | Promote hygiene and cleanliness | Placed next to booth, easy reach |
| Approachability Characteristic | Ensure inclusivity for all exploiter | Ramps, grab bars, lowered fixtures |
| Storage & Cleaning | Maintain tidiness and operable set | Concealed cabinets, durable materials |
| Alight & Ventilation | Improve safety, comfort, and air caliber | Motion detector, fumes buff |
| Entry & Exit Zones | Manage ft traffic and enhance security | Antechamber or turn circle recommended |
| Toilet Stalls | Provide individual, safe restroom access | Minimal 90 cm breadth per cubicle |
| Hand-wash Station | Promote hygienics and cleanliness | Adjacent to stalls, easygoing reach |
| Approachability Lineament | Ensure inclusivity for all users | Ramp, snap bars, lowered fixtures |
| Storage & Cleaning | Maintain tidiness and operable preparation | Concealed cabinets, long-lasting materials |
| Light & Ventilation | Improve safety, comfort, and air quality | Motility detector, fumes fans |
Optimise traffic flow is one of the most critical aspects of a Public Bathroom Floor Plan. A well-designed layout minimizes traverse paths and avoids narrow choke points, peculiarly in high-traffic emplacement such as mall or transportation stations. Stalls should be space to grant at least 1.2 measure between units, enable comfy transition yet when occupied. Corridors must be wide enough - typically 1.5 to 2 meters - to accommodate wheelchairs, ambler, and pinch access. Strategic position of mirror, signage, and visual clue help guide exploiter efficiently through the space, reduce confusion and wait multiplication.
Note: Always verify local building codes and accessibility ordinance before finalizing any Public Bathroom Floor Plan to ensure legal compliance and user safety.
Note: Incorporating long-lasting, non-slip floor and easy-to-clean surface significantly improve maintenance and long-term usability.
Billet: Regular audits of the floor plan base on user feedback assistant place constriction and improve functionality over clip.
The success of a public bathroom hinges on thoughtful planning that prioritise both practicality and human-centered pattern. By integrating open zoning, inclusive lineament, and efficient circulation, a Public Bathroom Floor Plan becomes more than just a layout - it becomes a reliable, welcoming space that serves the community with dignity and ease.
Related Terms:
- public convenience layout plans
- public toilet design with dimensions
- distinctive public restroom layout
- public bathroom plan layout
- small public privy layout
- public stool design layout