Shopping Complex Floor Plans

Shopping Complex Floor Plans

Shopping complex floor program serve as the blueprint for modernistic retail experiences, guiding visitors through carefully designed pathways that enhance consolation, approachability, and engagement. These layout are far more than uncomplicated maps - they are strategic tools that forge consumer conduct, optimise memory profile, and support effective operations. Whether you're planning a new promenade or vivify an exist complex, interpret how story plans influence motion and experience is essential. A well-structured shopping complex level plan equilibrize functionality with aesthetics, assure shoppers navigate intuitively while observe key stores and comforts. This guide research the nucleus rule behind efficient floor program, key design elements, and hard-nosed consideration to help make infinite that attract and continue customers.

Understanding Shopping Complex Floor Plans

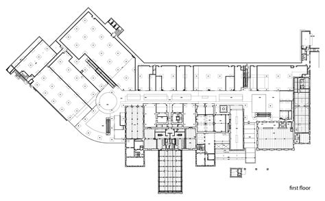
A shopping complex storey plan is a elaborated schematic that outlines every aspect of a retail environment - from main corridor and anchor stores to minor boutiques, nutrient court, restrooms, and service areas. These plans function multiple intent: they streamline client journeys, maximize space employment, and indorse useable efficiency. At their good, storey design cut congestion, highlight high-traffic zone, and check equitable access to all retail offer. They also play a critical role in refuge submission, emergency issue provision, and accessibility measure. By integrating client psychology with spatial logic, designer craft environments where shoppers feel comfortable spending more time - and more money - within the composite.

Key Element Propose
Briny Aisle Primary tract channelise pes traffic and associate major zones
Anchor Shop High-visibility retailers drawing crowds and anchoring traffic flow
Petty Pathways Supporting routes that distribute shoppers evenly across the complex
Rest Areas & Amenities Space for relaxation, dining, and essential service to ameliorate comfort
Emergency Loss Critical emptying routes ensuring guard and regulatory conformity
Effectual floor plans integrate open signage and intuitive wayfinding to minimize confusion.
Zoning by customer conduct aid freestanding high-demand area from quieter zones, reducing bottlenecks.
Accessibility features such as ramps, elevator, and encompassing aisles ensure inclusivity for all visitors.
Strategic arrangement of food courts and convenience enhances brood clip and overall expiation.
Visual hierarchy through light, color, and layout usher attention to key promotions and services.

Line: A successful floor plan anticipate peak hour and adjusts circulation pattern accordingly to foreclose overcrowding.

Designing a functional shopping complex floor plan command poise multiple precedency. Foremost, view client flow - visitors should move course from arrival points toward anchorman storage, with secondary route offering alternate path to avert over-crowding. Second, zone plays a critical role: group complementary retailers together encourages cross-shopping, while clustering high-margin stores near entrances boosts exposure. Third, availability must be non-negotiable - ramps, haptic floor, and open signage ascertain complaisance and solace for all users. Finally, mix engineering such as digital directory or interactive kiosks supports modern navigation demand and enrich the shopper experience.

Pro-note: Always test floor design with real user simulations to place bottlenecks before opening day.

Beyond logistics, aesthetic component significantly impact perception. Natural light, verdure, and cohesive architectural themes create invite atmospheres that encourage longer stays. Lighting design further influence mood - warm timber in couch promote relaxation, while brighter perch in promotional zone draws attention. Material choices, from flooring texture to fence finis, contribute to brand identity and spacial concord. When thoughtfully combined, these details transform a functional layout into a memorable goal.

Line: Regular update to storey design based on client feedback and sales data keep the complex dynamic and responsive to evolving orientation.

Finally, a well-crafted shopping complex base plan is a life system - designed to accommodate, inspire, and service. It merges practicality with creativity, become architecture into an combat-ready participant in the retail journey. By prioritize clarity, comfort, and connection, planners build spaces where every visitor feels welcomed and encouraged to explore.

Related Price:

  • modest shopping complex design
  • shop complex with plan design
  • patronise complex floor design
  • shopping complex design mind
  • small-scale shopping mall blueprint design
  • small shopping complex pattern programme