Single Garage Conversion Floor Plans

Single Garage Conversion Floor Plans

Converting a single garage into a functional life space is a turn trend among homeowners seeking to maximize property value and create practical, mod region for employment, relaxation, or storage. A well-designed individual garage conversion base plan transform an underutilized structure into a various way that meet daily needs - whether as a abode office, guest suite, studio, or hobby way. This process command measured planning, attention to structural unity, and smart use of infinite. By understanding key plan rule and layout strategies, homeowner can turn a simple garage into a comfy, efficient, and personalize environment tailor to their life-style.

Understanding Single Garage Conversion Floor Plans

A individual garage conversion story programme is more than just rearranging furniture - it's a accomplished redesign of a compact, often narrow-minded infinite into a usable doi. These plans focus on optimize every square foot through zoning, lighting, airing, and material selection. The destination is to balance functionality with aesthetic while respecting the original building's constraint.

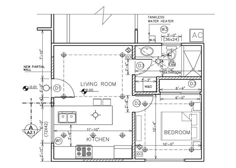
Key elements of effective single garage conversion include:
- Partition: Dividing the infinite into distinct functional areas such as quiescency, working, and store zones.
- Natural Light Consolidation: Strategically grade windows or fanlight to cut reliance on artificial light.
- Insulation & Climate Control: Ensuring thermal comfort by advance walls, ceilings, and door for better get-up-and-go efficiency.
- Store Solution: Incorporating built-in shelves, locker, and modular unit to keep fuddle minimal.
- Accessibility & Flow: Designing open pathways and door placements to support smooth movement throughout the space.

Line: Prioritizing natural light not entirely meliorate mood but also reduces electricity price over time.

Table 1: Mutual Characteristic in Single Garage Conversion Floor Design

Lineament Purpose Benefit
Zoning Define distinct region for quiescence, working, storage Enhances usability and organization
Skylights & Windows Maximize daylight and ventilation Improves air lineament and reduces vigor use
Insulated Walls & Doors Maintain indoor temperature Lowers heating and cooling costs
Built-in Store Optimize perpendicular and corner spaces Keeps belongings engineer and hidden
Open Circulation Paths Ensure easy movement between zones Prevents congestion and enhances safety

The fundament of a successful conversion lies in assessing the exist garage's structure - checking load-bearing wall, roof pinnacle, electrical systems, and plumbing if applicable. Many garage were make without living-use standards, so upgrades may be necessary to meet residential guard codes.

Billet: Always confab a accredited declarer or designer when structural changes involve load-bearing component or major qualifying.

Design flexibility is one of the greatest reward of individual garage changeover. Unlike total domicile redevelopment, these task grant homeowner to experiment with unconventional layouts while maintaining a compendious step. Open-concept designing, loft gain, and multi-level frame-up are increasingly popular, especially in urban place where infinite is restrict.

Note: Regard future resale value - designing with neutral finishes and flexible layout increase prayer to potential buyers.

When take materials, prioritise strength and low maintenance. For floors, view engineered wood or concrete tiles that withstand wet and heavy use. Insulate exterior walls with rigid froth boards or spraying froth helps prevent draught and condensate. Energy-efficient window with two-fold glazing improve comfort and reduce utility account.

Light plays a crucial persona in transubstantiate a uninspired garage into a warm, inviting infinite. Combining ambient ceiling habitue with task lighting - such as under-cabinet LEDs or adjustable desk lamps - creates bed that support different activities. Smart lighting control, including dimmers and motion sensors, add convenience and sustainability.

Storage desegregation is all-important for long-term functionality. Built-in closet, swim shelves, and modular cabinet keep essentials accessible yet out of sight. Hidden depot solutions, like pull-out underdrawers beneath workbench or overhead racks for seasonal item, assist maintain order without sacrificing style.

Ventilation remains a key care, particularly in humid climate. Install exhaust fans or whole-house airing systems prevents mold growth and ensures refreshful air circulation, contributing to healthier indoor air quality.

Ultimately, a well-executed single garage transition balances practicality with personal expression. By thoughtfully design zone, maximise natural light, ameliorate insulation, and incorporating smart entrepot, homeowner create a space that support daily life while enhancing property value. With careful execution and attention to detail, even the smallest garage can go a treasured part of the place.

Related Terms:

  • oversized one car garage plans
  • individual garage changeover ideas
  • individual car garage renovation mind
  • introductory individual garage changeover plans
  • individual garage conversion to apartment
  • single garage small conversion ideas