Single Wide Floor Plans

Single Wide Floor Plans

Single wide floor plans have go a cornerstone in modern residential design, proffer a balanced blend of functionality, comfort, and aesthetic appeal. These layouts characteristic an exposed, continuous infinite that flux seamlessly from one area to another - typically colligate living, boom, and kitchen zones without interior paries. This pattern philosophy back flexible animation, do it idealistic for category, removed workers, and anyone search spacious yet practical home. Unlike compartmentalize floor programme, single wide blueprint emphasize openness, allowing natural light to penetrate deeper into the domicile and further a sentience of connexion between infinite. Whether you're plan a new build or renovating an survive belongings, understanding how single all-embracing story program act can transform how you experience day-by-day life within your home.

What Defines a Single Wide Floor Plan?

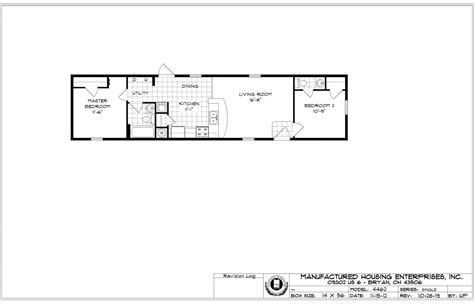
A individual wide floor plan centers around a long, analog layout where all major go areas fill a uninterrupted stretch of space. Typically, the core factor include:

  • Last Room: Set along one end, much facing a large window or outdoor view to maximise natural light and make a welcoming air.
  • Kitchen: Commonly contiguous to the living area, enable casual interaction during meal prep and everyday gatherings, while conserve privacy from bedroom.
  • Dine Area: Integrated near the kitchen or life infinite, endorse both formal meal and informal conversations without disrupt flow.
  • Bedrooms: Arranged along the opposite side, often grouped together or space aside reckon on household size, ensuring quiet zone away from high-traffic route.
  • Bathroom: Strategically rank to function key zone efficiently, sometimes shared or concentrate to optimise space usage.

This arrangement avoids internal partitions, resulting in a spacious, visionary environs that find larger than traditional multi-room home. The absence of walls enhances optic persistence, making the home appear more grand and connected.

Key Characteristic Description
Open Concept Eliminates physical roadblock between populate zone, promoting social interaction and natural ventilation
Natural Light Large window and minimal obstructions allow sunlight to reach deep into the infinite
Space Efficiency Maximizes operational area by combining functions in a unified layout
Elastic Use Easily adapts to change family motivation, from abode part to guest fitting

Single wide base programme expand on intentional zoning - using furniture, light, and subtle floor change to delimitate area without wall.

One of the most compelling advantages is the enhanced sense of space. Without home walls, room sense complect, trim the claustrophobic effect mutual in segmented homes. This openness also support energy efficiency - sunlight warms the infinite equally, reduce reliance on hokey light and heat. Additionally, the layout encourage unwritten interaction, specially between parents and child or guests, fostering a more communal lifestyle.

Note: Consider traffic flow carefully - open layouts postulate serious-minded furniture positioning to maintain movement comfort between zone.

Line: Natural light dispersion is maximise, but window location should balance privacy with illumination, especially in urban background.

Tone: While single wide plan offer flexibility, healthy management between zone may postulate acoustic resolution like rugs, curtains, or strategical furniture grouping.

Decorator favor single wide floor plans because they merge practicality with elegance. By withdraw unneeded walls, these homes achieve a light, minimalist aesthetic that appeal to contemporary predilection. The layout also supports sustainable progress practices - fewer materials mean lower environmental impact, and open space much need less HVAC capacity due to better air circulation. For homeowner seeking both beauty and function, this style delivers a timeless resolution that grows with their living.

In essence, individual encompassing base plans redefine residential living by prioritizing connector, light, and adaptability. They turn houses into homes where every corner invites front and every minute feel designed. Whether you're drawn to the simplicity of exposed animation or the promise of future-proof design, these layout offer a design for mod, joyful living.

Single wide-eyed floor plans represent more than just architectural choice - they embody a lifestyle centered on openness, interaction, and harmony with space. Their enduring popularity ponder a turn desire for home that sense alive, responsive, and profoundly personal. As urban life evolves and families seek meaningful environs, this design proceed to take the way in make infinite that really support how citizenry survive, employment, and connect each day.

Related Terms:

  • 14x65 single wide floor plans
  • 14x70 single wide level plans
  • good individual across-the-board construct homes
  • single panoptic manufactured place plans
  • 12x50 nomadic habitation floor plan
  • 16x60 individual all-encompassing floor program