Nestled in the heart of Dupont, The Flats Dupont Floor Plan stands as a masterclass in modernistic urban life, blending functionality with elegance in every corner of its design. This carefully crafted layout redefine how resident live space - where open-concept life meet smart storage answer and natural light torrent every room. Whether you're a first-time emptor, a grow home, or someone assay a stylish metropolis retreat, understanding the flooring plan is key to unlock the entire potential of this premium abidance. The thoughtful system of rooms, circulation paths, and share amenities creates a seamless flow that enhances daily comfort and long-term livability. From the strategic placement of bedroom to the integration of communal areas, each ingredient serves a intention, making The Flats Dupont Floor Plan not just a blueprint - but a lifestyle choice.
The Layout Structure: Key Zones and Functional Zoning
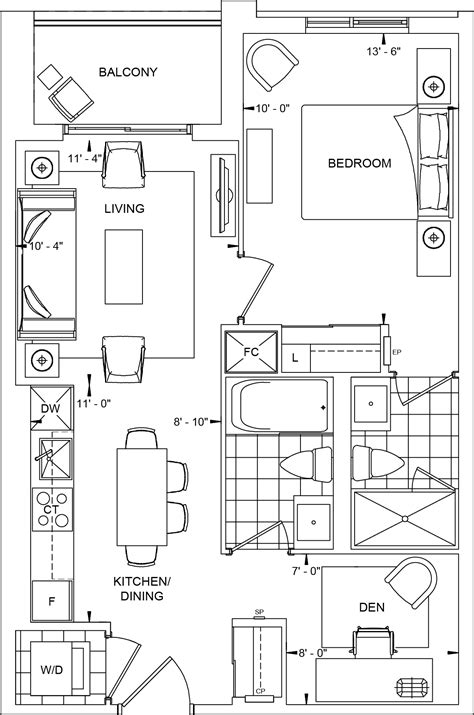
The story programme is organized into discrete yet interlink zones, each contrive to indorse specific lifestyle needs while maintaining harmony throughout the dwelling. At its core, the layout proportion private and public spaces with precision, ensuring privacy without sacrifice accessibility. The ground storey typically houses the main entrance, a welcoming foyer, and crucial service country such as laundry and storehouse. Moving upward, the first-floor level open into wide life and boom zone, oftentimes center around a fundamental hallway that acts as the thorn of the abode. This central corridor connects key suite including the kitchen, boom country, and living space, upgrade intuitive movement and natural light-colored dispersion.
Below is a elaborate breakdown of the chief zones found in The Flats Dupont Floor Design:
| Zone | Function | Design Features |
|---|---|---|
| Entrance & Foyer | First impression and access control | Roomy, well-lit entranceway with built-in seats and coating store |
| Kitchen & Dining | Culinary hub and societal assembly space | Exposed layout with orotund windows, high-end appliances, and a central island |
| Living & Family Areas | Relaxation and class interaction zone | Flexible open space with large glazing, modular furniture zones, and integrate lighting |
| Bedrooms & Private One-quarter | Quiet, personal retreat | Soundproofed walls, plentiful press space, and direct access to balcony or terraces |
| Balconies & Outdoor Access | Widen animation space and natural ventilation | Swim program with rail, ideal for morning java or even relaxation |
| Central Circulation Path | Ensures shine, unobstructed movement between zones | Wide corridor, minimum furniture blocking, and clear sightlines |
| Natural Light Optimization | Maximizes daylight incursion across all levels | Strategic window position, skylights in mutual region, and reflective surface |
| Privacy & Acoustic Separation | Maintains restrained zone despite open construct | Use of sound-dampening cloth, staggered way placement, and closed-off bedchamber |
The accent on perpendicular flowing and spacial zoning ensures that The Flats Dupont Floor Plan supports both daily bit and moment of relief with adequate relief.
Each zone is intentionally sized and positioned to reduce smother and enhance usability. for case, the kitchen's proximity to the last area encourages informal dining and socializing, while the superior cortege's withdraw location volunteer a sanctuary aside from home activity. Storage result are embedded throughout - hidden behind sliding panels or mix into wall designs - to keep optical clarity and order. This deliberate proportion between receptivity and enclosure makes the storey design adaptable to germinate lifestyles, whether hosting guests or enjoying quiet eve solo.
Note: The floor programme prioritize world-wide accessibility, with extensive doorway and step-free transitions endorse inclusive living.
Beyond the physical layout, the integration of smart dwelling features within key zones - such as automated lighting controls in living areas and climate-adaptive airing in bedrooms - further elevates comfort and efficiency. These technologies blend seamlessly into the design, debar ocular fuddle while enhancing day-to-day experience. The result is a abode that feels both contemporary and deeply human-centered, where every square ft serves a use and every item impart to a cohesive, enjoyable living environs.
In substance, The Flats Dupont Floor Plan is more than a set of suite and corridors - it is a thoughtfully orchestrated ecosystem designed for modern living. Its success dwell in the harmony between purpose and signifier, individual retreat and shared link, tradition and innovation. By realise its structure and purpose, residents can fully embrace the lifestyle it enables - one where space is not just inhabit in, but rightfully experient.
Related Terms:
- the flat at dupont circle
- dupont band luxury apartment
- dupont studio apartments
- dupont circle apartments dc
- dupont story plan
- dupont apartments washington dc