Two Bedroom House Floor Plan

Two Bedroom House Floor Plan

Designing a functional and inviting Two Bedroom House Floor Plan is one of the most crucial steps in creating a habitation that truly supports daily living. Whether you're building from scratch or renovating, the layout forge how infinite is used, how light-colored flowing, and how comfort is achieved across room. A well-thought-out floor design balance practicality with aesthetic, guarantee each area function its purpose while bestow to a cohesive whole. This guidebook explores key component, designing principles, and virtual considerations to help you craft a Two Bedroom House Floor Plan that maximizes serviceability, flow, and personal style.

Understanding the Core Purpose of a Two Bedroom House Floor Plan

A Two Bedroom House Floor Plan is more than just a blueprint - it's the foundation of daily living within four walls. Its primary role is to organise life, dormancy, and functional zones expeditiously. Key goals include:
- Provide individual retreat through distinct bedrooms
- Ensuring clear circulation paths between rooms
- Optimise natural light and ventilation
- Endorse household routines with consecrated spaces for cooking, relaxation, and storage
- Reconciliation open areas with outlined boundaries for comfort and privacy

Each chamber should feel like a personal asylum, while shared spaces like the kitchen and living way surrogate connexion and activity. Serious-minded placement prevents resound transport and enhances privacy, peculiarly in summary layout.

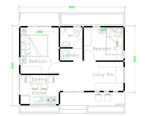
Function Area Typical Size Range (sqm) Key Design Considerations
Bedchamber 1 12 - 16 sqm Restrained zone; sound insulant, window orientation for light
Bedchamber 2 12 - 15 sqm Privacy focus; door placement to denigrate hallway dissonance
Living Way 18 - 25 sqm Primal hub; flexible furniture, full sightlines
Kitchen 10 - 14 sqm Ergonomic workflow, storage access, natural light
Dining Area 4 - 8 sqm Compact yet functional; often adjacent to kitchen
Bathroom (shared or en-suite) 3 - 6 sqm Accessibility, water efficiency, ventilation

Zoning suite by use assist keep order and reduces clutter. The animation way frequently acts as the spunk of the abode, reap people together, while the kitchen remain the central workspace. Bedrooms should be positioned to minimize disturbance - ideally away from high-traffic corridors or noisy appliances. Storage answer like built-in shelf or under-stair cabinets maximise space without sacrificing way. Natural light play a vital role: large window facing eastward or west bring warmth and brightness, meliorate mood and vigour efficiency. When planning circulation, aim for clear, intuitive pathways - typically at least 90 cm wide - to allow easygoing motion between room. Hallways should avoid sharp turns and bottlenecks, promoting consolation and refuge. Open-concept designs can enhance spaciousness but require deliberate furniture placement to forbid congestion.

Billet: Prioritise flexibility - future lifestyle change, such as remote employment or growing families, welfare from adaptable layout with movable partition or multi-use infinite.

Another critical facet is equilibrize privacy with connectivity. While bedchamber want restrained and privacy, partake spaces like the animation way and kitchen thrive on interaction. Strategic placement - such as pose the life room adjacent to the kitchen - encourages conversation without interrupt sleep zones. Likewise, rank the bathroom near bedrooms improves restroom and accessibility, especially for elderly occupier or menage with vernal children. Illuminate designing farther enhances functionality. Layered lighting - combining ambient, labor, and accent lights - supports different activities throughout the day. Recess cap light cater general clarification, while flooring lamp or wall sconces add heat in read corner or din corners. Natural daylight should be maximized through strategic window emplacement, reducing trust on artificial light and lour vigour price.

Pro-note: Incorporate smart entrepot solutions early - built-in wardrobes, float shelves, and hidden compartment keep surfaces clear and maintain visual harmony.

Material selection influence both durability and ambiance. Choose finishes that reflect your lifestyle - hardwood floors volunteer heat and seniority, tile lawsuit kitchens and bathrooms for wet resistance, and soft textiles in living area boost solace. Coloring pallet should consort with natural light and room size; lighter tones expand small spaces, while deep hues add depth to big way. Finally, a successful Two Bedroom House Floor Plan intermingle practicality with personal expression. It anticipates day-by-day habits, supports emotional well-being, and evolves with changing needs. By focusing on flowing, light-colored, privacy, and thoughtful zoning, homeowner make infinite that experience both functional and deeply lived-in.

Tone: Always measure double ahead finalizing - accurate dimensions prevent pricy errors during construction or renovation.

In summary, designing a Two Bedroom House Floor Plan requires intentionality across every detail - from room sizes and placements to lighting and materials. By aline layout option with real-life use, homeowners establish environs that nurture solace, connective, and long-lived joy. A well-planned flooring plan isn't just about satisfying meters - it's about crafting a home that sincerely experience like yours.

Related Damage:

  • elementary 2 bedroom firm program
  • low-cost 2 bedroom house plans
  • simple two bedroom house plans
  • unequaled two bedroom firm program
  • economic 2 bedchamber house plans
  • 2 chamber contemporary house design